Dvojkovový teploměr se závitovým hrdlem je určen pro přímé měření teploty v teplovodních nebo parních rozvodech.
V hlavici zhotovené z nerez oceli je umístěn číselník s pohyblivým ukazatelem. V zadní části hlavice přístroje je vyvedeno závitové hrdlo se stonkem, ve kterém je umístěn dvojkový měřicí systém, který se změnou teploty otáčí. Tento pohyb je přenášen hřídelkou na ukazovatel, který pak na číselníku se stupnicí vykazuje výchylku udávající měřenou teplotu.
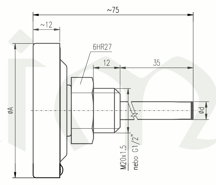
Montáž a demontáž je zakázáno provádět otáčením za hlavici teploměru. Přístroj se může upevnit pouze pomocí klíče č. 27 za závitové hrdlo teploměru.
Měřicí rozsah 0..+120°C.
Dělení stupnice po 1°C
Dovolená tolerance ±2% z celého rozsahu
průměr číselníku 6cm.
Technické údaje
|
Rozsah stupnice |
Měřicí rozsah |
Dělení stupnice |
Dovolená tolerance |
Druh závitu |
Barva tisku |
|
0 až 120 °C |
20 až 100 °C |
po 1 °C |
±2 % z celého rozsahu |
G 1/2 |
černá |
|
M20x1,5 |
červená |
||||
|
modrá |
|||||
|
øA = 60 mm pro DTZ 60 øA = 100 mm pro DTZ 100 ød = 8 mm |
|||||
|
Funkční část stonku je konstrukčně přizpůsobena jen do tlaku 0,3 MPa !. |
|||||
Výroba teploměrů typu DTZ již byla ukončena,
poslední dostupné kusky jsou se závitem M20x1.5,
do vyprodání zásob,
Nahrazeno teploměry: TR60/45_0-120°C +jímka.
